Elegant Minimalist
Interior renovation
Lexington, MA


















This project began as a primary suite renovation. It has since expanded, room by room, into something closer to a whole-house transformation, driven not by a predetermined masterplan but by a working relationship that deepened with each completed phase. The clients are avid art collectors with a exquisite sense of taste, and every design decision has been made in dialogue with that sensibility. Despite the phased nature of the work, a single material and spatial vision runs through every completed room. The work continues.
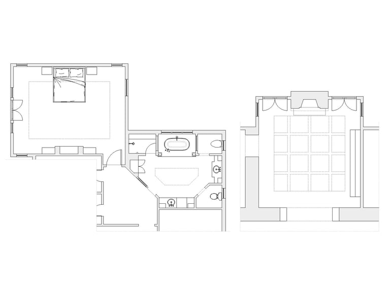
The original bathroom was generously proportioned and finished to a high standard, with a platform tub framed by a columned arch, ornamental mosaic insets, and a full vanity wall with flanking cabinetry. The layout, however, had been organized around its decorative elements rather than its spatial logic, resulting in a floor plan fragmented into a series of alcoves and a room that, despite its square footage, lacked a clear hierarchy and focal point. The corridor was oversized and stole space from the main areas without providing any added value. The irregular shape made it also impossible to display art as points of visual interest.
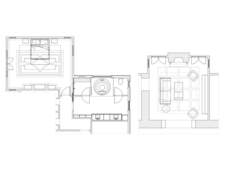
The renovation reoriented the bathroom around a single spatial idea: one axis, one focal point, one primary material per surface. The platform tub and its columned surround were replaced with a freestanding soaking tub, repositioned to reinforce the room's primary axis. The compartmentalized layout was dissolved into a single open plan. A custom white oak vanity runs the length of one wall, topped with a full-height slab of book-matched blue quartzite that extends continuously from countertop to ceiling. The shower enclosure is glazed in custom rain-effect glass by Nathan Allan Glass Studios. The glass was developed specifically for this project: the client's brief was water in motion. The floor transitions from large-format tiles tile to river-pebble mosaic at the shower threshold, marking the boundary without interrupting the material continuity of the room. The shower is curbless, with a linear drain recessed beneath the bench, maintaining the floor plane without interruption.












The decision to commission a stained glass window for the primary bathroom was not decorative, it was spatial. The bathroom required a memorable focal point at the end of its primary axis. Jim Anderson, whose studio has restored and fabricated Tiffany-tradition glass in the Boston area for decades, was brought in as a collaborator from the earliest stages of the design. The composition, water lilies, irises, a birch tree, and mountain landscape, was developed jointly between the designer, the client, and Anderson's studio. The window performs differently across the hours of the day: in full daylight it reads as landscape; in interior light it shifts toward jewel tones; with the room lights extinguished it becomes pure transmitted color. The photographs here show all three conditions deliberately. No single image captures what the piece does.






The bedroom presented an opposite problem from the rest of the house: it was under-elaborated relative to its volume. A deep coffered ceiling with no interior articulation read as emptiness rather than grandeur. Custom decorative trim was applied within the coffer to give the ceiling a presence proportional to the room, and a tiered glass chandelier was introduced to complete the vertical composition. The existing tray ceiling profile was retained and subtly refinished. Furnishings, textiles, and artwork were specified as a single layered palette, warm neutrals, hammered metal nightstands, and a bird triptych on antique manuscript paper that animates the wall above the bed without competing with the architectural envelope.
The existing fireplace surround was a poured concrete aggregate, oversized for the room and at odds with the architectural finish level of the coffered ceiling and arched French doors that surrounded it. The surround was replaced with a monolithic travertine composition, cut and installed to read as a single continuous mass. The mantel profile was kept minimal. Above it, a fossil stone triptych, selected by the client from a range of options reviewed together, functions as the room's primary artwork and material anchor. The chandelier, a layered brass-and-glass drum, was sized to the coffered grid and replaces a fixture that had been out of scale with the room. Drapery and furnishings were subordinated to the stone, the rug, and the ceiling geometry. The sequence below documents the before condition, the photographic simulation produced during the design phase, and the completed result, illustrating how closely the built work corresponds to the design intent. The result is a room that finally uses what the architecture had been offering all along.
Materials, fixtures, and finishes across all completed phases were selected and specified as part of a single design vision, despite the project never having been conceived as a whole. All construction documents, including plans, electrical, plumbing, interior and exterior elevations, and 3D simulations were produced in-house. Specifications extended to every functional detail, with fixture positioning determined by the client's specific ergonomic requirements. Site supervision was maintained throughout each phase of construction, from initial survey to completion.








Plans
____________________________________
________________________________________________________________________________________________________________________________________




Existing
Proposed
________________________________________________________________________________________________________________________________________
____________________________________
Info
Scope:
Interior Renovation
Role:
Principal Designer
Size:
7900 sf
General Contractor:
Stone:
Lighting Fixtures:
Restoration Hardware, Niche Modern
Plumbing Fixtures & Appliances:
Victoria & Albert, House of Rohl, Aquatica
Tiles:
Ann Sacks, Tile International
Shower Glass:
Stained Glass:
Photography:
____________________________________
________________________________________________________________________________________________________________________________________
The right project finds the right designer. I'd love to hear about yours.
________________________________________________________________________________________________________________________________________
________________________________________________________________________________________________________________________________________
____________________________________
____________________________________