Colonial Revival
Reading, MA
Luxury interior design historical home Reading Massachusetts
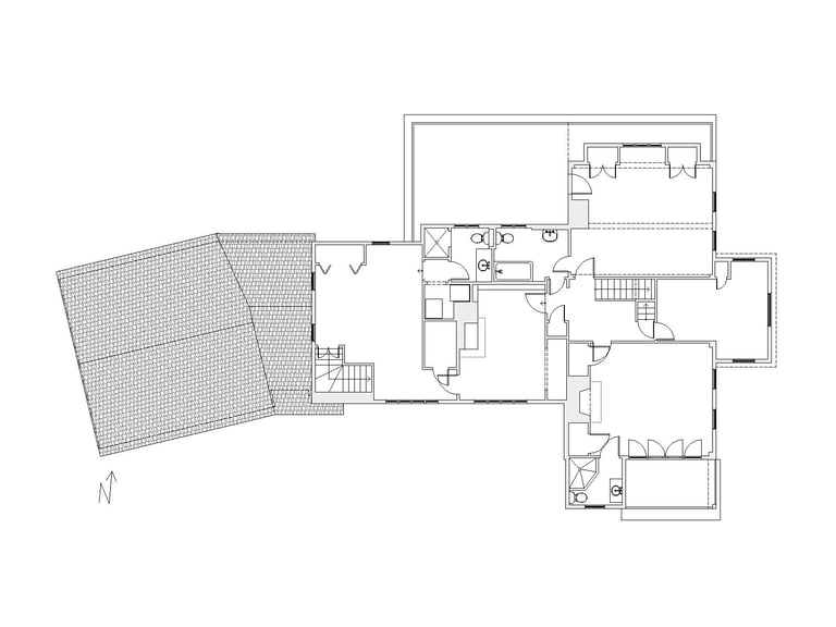
This Colonial Revival in Reading is the result of a comprehensive reimagining of a house whose original layout had rendered most of its square footage ineffective. The existing kitchen occupied a central, landlocked position with no exterior exposure. Ceilings were low throughout. The entry was compressed and poorly lit. Bathrooms were distributed without regard for the bedrooms they were meant to serve. A north-facing deck off the master bedroom contributed nothing to the interior and presented persistent maintenance demands.














The kitchen was relocated to the north wing of the house, a position that afforded exterior exposure on two sides and made it possible to remove the deck structure above. The freed roofline was redesigned as a sloped ceiling with a custom oak-framed skylight grid, resolving both the ceiling height and the absence of natural light in a single move. The new kitchen receives light from two walls and from above. The Breccia Capraia marble, used continuously across the island surface and the full-height backsplash, anchors the composition. The cabinetry and Wolf range are subordinate to the stone, which functions as the primary material presence in the room. A pantry and a bar, transitioning into the formal dining room, complete the sequence. The exterior language of the Colonial Revival was maintained across the new roofline geometry.
The entry hall was opened to a double height, with a mezzanine inserted above to provide access to a home office. The office maintains proximity to the children's bedrooms while operating as a spatially distinct environment. The vertical volume transformed what had been the most anonymous threshold in the house into its first meaningful architectural experience.




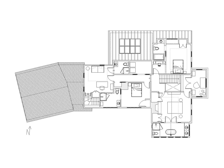
The south-facing deck off the master bedroom was removed, and the footprint was enclosed to create the master bathroom addition. The new volume, vaulted and flooded with light through three windows surmounted by a Palladian arch, accommodates a freestanding soaking tub, a custom walnut double vanity with cane-front cabinetry, and a full-height backsplash in green-and-rose onyx. The mirrors were positioned directly in front of the windows: natural light reaches the vanity plane without obstruction throughout the day. From the exterior, the addition reads as continuous with the existing sunroom below and with the existing roof line above, correcting a formal imbalance that had long detracted from the street facade.








The second floor was reconfigured to align bathroom locations with bedroom adjacencies. Cathedral ceilings were introduced throughout the attic level where the structure permitted. The powder room, previously situated in a position that defied practical use, was relocated within a more considered area of the plan. The original hearth locations were preserved, maintaining the living room and sitting room in their existing positions while the surrounding layout was reconstructed around them.


















Every material, fixture, and piece of furniture was specified as part of a single coherent design vision. All construction documents, including plans, electrical, plumbing, interior and exterior elevations, and 3D simulations were produced in-house. The project was managed from initial survey through construction completion.
Plans
____________________________________
________________________________________________________________________________________________________________________________________










Existing First Floor
Existing Second Floor
Proposed First Floor
Proposed Second Floor
Kitchen Proposed Section
________________________________________________________________________________________________________________________________________
____________________________________
Info
Scope:
Full Interior & Exterior Renovation, Second Floor Addition
Role:
Principal Designer
Size:
4600 sf
General Contractor:
Stone:
Lighting Fixtures:
Restoration Hardware, Rejuvenation, West Elm, Moooi, Anthropologie, CB2
Plumbing Fixtures & Appliances:
Victoria & Albert, Kohler, Kallista, Wolf, Sub-zero
Custom Cabinetry:
Furniture:
Restoration Hardware, Arhaus, Citizenry, Anthropologie, CB2
Wallcovering:
Moooi, Arte International.
Photography:
____________________________________
________________________________________________________________________________________________________________________________________
The right project finds the right designer. I'd love to hear about yours.
________________________________________________________________________________________________________________________________________
________________________________________________________________________________________________________________________________________
____________________________________
____________________________________