Historic Barn
Concord, MA
Antique Timber Frame Barn Conversion and Interior Design, Monument, street, Concord MA Greater Boston New England










The project began with a single element: an antique post and beam oak frame, originally from a barn built in rural Pennsylvania in 1834, purchased by the client and brought to their Monument Street property in Concord. The frame was dismantled at its original site, transported, and re-erected on a new foundation by Colonial Barn Restoration Inc. There were no walls, no floor, no enclosure of any kind. Everything else was designed from that starting point.
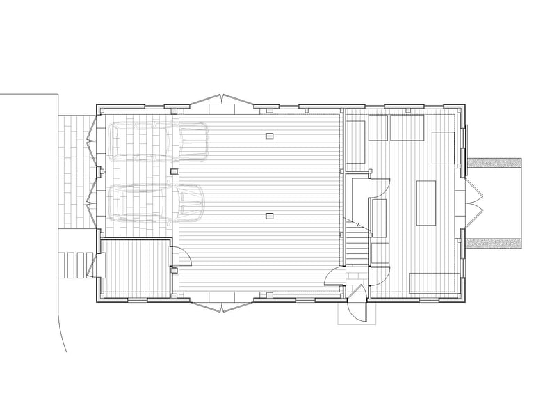
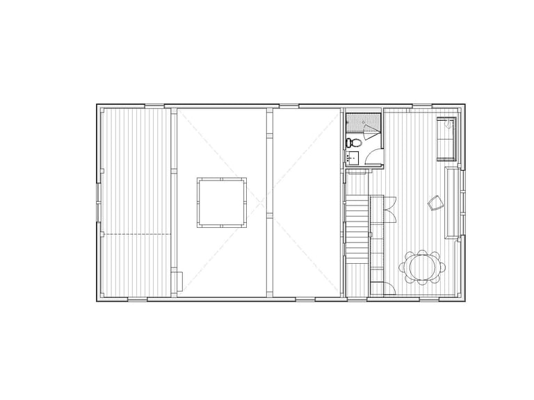
The layout was organized across two floors. The ground floor accommodates two cars and a fully equipped woodshop for a client who is both an avid collector of antique books and an accomplished woodworker. The upper floor was designed as an atelier for his wife, an interior decorator, with an adjoining bathroom. The primary challenge was the integration of contemporary mechanical, electrical, and plumbing systems into an existing oak structure whose visual integrity depended on the frame remaining legible and unencumbered.








Reclaimed materials were specified throughout wherever the construction permitted. The woodshop walls are lined with reclaimed shiplap, interior doors were sourced from salvage with vintage hardware on several. The stone curbs at the barn doors are reclaimed pieces from the restoration of the Longfellow Bridge in Boston, a material decision that connects the building to the broader history of the region without drawing attention to itself. Windows were custom fabricated by Little Harbor, the exterior is clad in natural cedar shingles, and all barn doors are painted in Essex Green, a palette that is entirely of its place without being self-consciously historic. A cupola was added to resolve the massing of the building at the roofline, correcting a visual imbalance that the volume of the structure would otherwise have presented from the street.








The upper floor atelier was kept deliberately bare, white shiplap throughout with no color and no ornamentation, a neutral field intended to recede behind whatever work its occupant brings to it. The bathroom is anchored by a custom soapstone sink carved from a reclaimed soapstone block.
This project was completed while working at Hart Associates Architects, with Jen Hart as lead architect. I led the full scope of design development and documentation, including architectural drawings, sections, elevations, electrical, plumbing, and interior details, as well as site coordination with Colonial Barn Restoration Inc.
Plans
____________________________________
________________________________________________________________________________________________________________________________________








First Floor
Second Floor
________________________________________________________________________________________________________________________________________
____________________________________
The Existing Timber Frame
Sections
Info
Scope:
Adaptive Reuse, New Construction on Antique Frame
Role:
Architectural Designer at Hart Associates Architects
Size:
3600 sf
General Contractor:
Colonial Barn Restoration Inc.
Photography:
____________________________________
________________________________________________________________________________________________________________________________________
The right project finds the right designer. I'd love to hear about yours.
________________________________________________________________________________________________________________________________________
________________________________________________________________________________________________________________________________________
____________________________________
____________________________________